品诺德庄园葡萄酒价格表(品诺德庄园葡萄酒多少度)
品诺德庄园葡萄酒价格表(品诺德庄园葡萄酒多少度)
品诺德庄园葡萄酒价格表。这是中国市场首次出现这样的价格表,也是国内第一份针对中国消费者的葡萄酒价格表。该价格表显示,在全球范围内,法国波尔多产区区的波尔多红葡萄酒的平均价格为每公升1.5万元人民币,而中国产区的波尔多红葡萄酒的平均价格为每公升1.2万元人民币。这一价格比去年增长了10%左右。而且,中国产区的波尔多红葡萄酒的销售额也在不断增长。
一:品诺德庄园葡萄酒价格表
2011年的38元\r\n\r\n2011长城干红葡萄酒价格表\r\n\r\n长城低醇八度西拉葡萄酒(红标) 750ml 价格:¥98.00\r\n长城沙城三星干红葡萄酒 750ml 价格:¥72.00\r\n长城华夏葡园小产区s区5年干红葡萄酒 750ml 价格:¥188.00\r\n长城霞多丽干白葡萄酒 750ml 价格:¥78.00\r\n长城银庄特级精选葡萄酒纸桶装 750ml 价格:¥158.00\r\n长城华夏葡园小产区s区3年干红葡萄酒 750ml 价格:¥126.00\r\n长城华夏葡园小产区A区干红葡萄酒木盒装 750ml 价格:¥408.00\r\n长城桑干酒庄特别珍藏西拉干红葡萄酒 750ml 价格:¥755.00\r\n长城华夏葡园小产区s区7年干红葡萄酒 750ml 价格:¥248.00\r\n长城钻石五星干红葡萄酒木盒装 750ml 价格:¥547.00\r\n长城五星干红葡萄酒木盒装 750ml 价格:¥316.00\r\n长城海岸金色庄园高级干红葡萄酒 750ml 价格:¥236.00\r\n长城桑干酒庄特级精选干红葡萄酒 750ml 价格:¥368.00\r\n长城赤霞珠干红葡萄酒12.5度750ml 价格:¥38.00\r\n长城精品三星蛇龙珠干红葡萄酒12度750ml 价格:¥78.00\r\n长城三星葡萄酒鸳鸯礼盒干白干红各一支 价格:¥158.00\r\n长城精品四星梅鹿辄赤霞珠干红葡萄酒12度750ml 价格:¥228.00\r\n长城精品一星干红葡萄酒 价格:¥78.00\r\n长城精品二星干红葡萄酒750ml 价格:¥108.00\r\n长城华夏葡园小产区S区三年珍酿干红葡萄酒750ml 价格:¥126.00
二:品诺德庄园葡萄酒多少度
按照以下方法即可给观湖庄园增添女护卫:
开控制台;
输入player.placeatme空格000467bb(这是风暴的士兵);
空格数字或着000A27CC(雪漫的士兵)这个刷出来的应该是男的;
如果你非要女的,那么只好再依次点中他们,开控制台改变性别。
如果你的目的只是保护房子的话,有一个“关乎庄园扩建mod”它给观湖添加了围墙和六个护卫有法师有战士,还添加了商店,扩建了种植地。可以试试,在游民就有得下。
代码:怪物名称
ea6 冰霜元素
173c2 风暴斗篷士兵(松加德)
173c1 帝国士兵(松加德)
173c0 风暴斗篷士兵(松加德)
16ffa 魔人王士(法师)
16ff9 魔人王士(近战)
16ff8 魔人王士(近战)
16ff7 魔人公爵(法师)
16ff6 魔人公爵(近战)
16ff4 魔人公爵(近战)
16ff3 魔人王士(法师)
16fe2 魔人王士(近战)
16f6a 魔人王士(近战)
16f69 魔人军士
16f46 魔人军士
16f04 魔人贱民
16ef6 魔人贱民
16ef0 魔人贱民
10feee 龙(喷火)
10feed 龙(喷冰)
10feec 龙(喷冰)
10fe05 狼(红色)
10fd64 龙(样本)
10fce7 矮人百夫长大师
10fce6 矮人百夫长大师
10fc24 雪鼠
10fc15 龙祭司
10f9bb 矮人召唤
10f9ba 矮人百夫长守卫
10f9b9 矮人召唤
10f5aa 阿里克尔勇士
10f5a1 阿里克尔勇士
10e38b 魔人公爵
10ddee 魔人大君
10f7fd 马匹
10f544 尸鬼死亡领主
10f509 狼人
10f2a4 斑点狼
10f2a3 冰狼
10f2a2 狼
10f13b 诺德人
10ee51 矮人机械球守卫
10ee4d 矮人蜘蛛
10ee47 强大风暴元素
10ee46 强大寒霜元素
10ee45 风暴元素
10ee43 寒霜元素
10ec93 矮人大师级机械球
10ec92 矮人机械球
10ec91 矮人蜘蛛工人
10ec8e 矮人大师级机械球
10ec89 矮人机械球
10ec87 矮人蜘蛛守护者
10ec86 矮人蜘蛛工人
10e84b 乌鸦鬼婆
10e7fe 乌鸦鬼婆
10e753 矮人百夫长守卫
10e752 损坏的矮人机械球
10e2c5 风暴斗篷士兵(雪漫)
10e2bf 雪漫卫兵
10e05d 死灵法师学徒
10de20 裂谷城卫兵
10de1f 帝国卫兵
10d4b9 风暴斗篷士兵
10d4b8 风暴斗篷士兵
10d4b7 风暴斗篷士兵
10d4b6 风暴斗篷士兵
10d4b5 帝国士兵
10d4b4 帝国士兵
10d4b3 帝国士兵
10d4b2 帝国士兵
10d3cf (虎人男性预设)
10d3c5 (亚龙人男性预设)
10d3c4 (亚龙人男性预设)
10d3c3 (亚龙人男性预设)
10d3c2 (亚龙人男性预设)
10d3c1 (亚龙人女性预设)
使用说明:
解压缩
将DATA文件夹复制到游戏根目录
用MOD管理器加载ESP
进入游戏中即可生效
NMM自动安装方法:
添加压缩包到NMM(列表中出现)
双击列表安装
进入游戏即可
MOD说明:
外部场景加了一道围墙,内部原版的地下室扩建了一个房间地下室祭坛对面的墙,然后这个房间右边角落还有个地下室的门,打开就能进去,是一个山洞,里面有一个小的游泳池和2个女性Npc 还有3张床神马的,很不错的一个MOD。
MOD截图:
三:品诺德红酒
顺义后沙峪的中铁诺德·阅墅最近又有新动作了!项目不仅开放了临时售楼处,正式版的户型图也出来了,并且最快6月底就要开盘了。整个后沙峪板块中,目前共有四个限竞房项目,包括祥云赋、公园十七区、建邦·顺颐府和中铁诺德·阅墅。其中,祥云赋已在去年开盘,目前有洋房和合院在售,洋房总价475万起,合院1500万左右;另外三个项目均是待售状态,预计都在今年入市。
在这四个项目中,中铁诺德·阅墅可以说是最有亮点的。一是它将中央别墅区纯别墅社区的入住门槛降到了千万级别,后沙峪所属的中央别墅区,别墅产品都在2000万以上,比如优山美地D区等,而中铁诺德·阅墅总价最低可到1200万。二是它是区域内唯一没有7090限制的限竞房,其他三个限竞房,均有7090限制,产品以90平米及以下小户型为主。中铁诺德·阅墅则不受7090限制,且容积率只有1.01,居住舒适度更高。
不过项目也有不足,比如价格高,均价6.2万,比同区域的限竞房均价高了7000元左右。价格虽高但产品品质较好,对于改善群体来说,它是一个不错的选择。
按照惯例,先说下项目的最新进展:
1、临时售楼处有了,样板间5月底开放。帮主打听到,项目售楼处就在顺义榆阳路8号荣祥广场(新国展南侧),已经开放了,感兴趣的朋友可以去看下。目前项目正在排卡,目前已排到了200多号,样板间预计在5月底开,成功排号的客户可以在样板间开放之后优先选房。
2、户型图出炉,为272-425平米的叠拼和合院产品。项目共有2种产品,包括叠拼和合院。
合院
地上3层+地下2层设计,房本面积320平米,使用面积425平米左右(包括100平米左右的赠送)。赠送包括庭院(48平米)、电梯井赠送(9平米)、露台(20平米)、挑空(30平米),该户型南北双庭院设计,共有四间卧室。
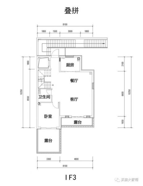
叠拼
分上叠和下叠两种,面积为272-397平米(有赠送)。
其中上叠为地上2层+地下2层设计,房本面积是220平米,使用面积为272平米,赠送主要是在露台(28平米)和庭院(18平米)。

下叠也是地上2层+地下2层设计,房本面积314平米,使用面积397平米,赠送面积最多的部分是南向48平米的花园。
3、预计6月底开盘,将开290套房。不过具体哪天开还是要看拿证的时间。首次推出的是地块东区产品,共290套房。其中,叠拼198套,上叠总价1200万,下叠总价在1400-1500万。合院92套,总价在1600-1800万。
网上有传言说本次开盘还有十几套洋房产品,但据帮主从销售口中得知,洋房均在项目地块北侧,属于中铁自持产品,并不对外销售。
中铁诺德·阅墅,从目前销售告知的排卡数来看,项目
不论是拍地时房企的竞争,还是目前购房者的
01
区域内唯一一个纯别墅社区的限竞房
项目处在后沙峪板块,板块内共有四个限竞房,除了中铁诺德·阅墅,还有祥云赋、公园十七区和建邦·顺颐府。其中,后面三个项目地块相邻,都受7090限制,社区规划上多是洋房或高低配设计;而中铁诺德·阅墅,因为没有7090限制,加上1.01的低容积率,全部建成了高端的叠拼和合院产品,在居住环境上更加纯粹。
02
价格优势明显
项目周边新房,多是高端住宅。纯别墅社区的优山美地D区和金隅上城庄园,总价都在2000万以上。而中铁诺德·阅墅,总价最低可到1200万。虽然项目旁边的龙湾别墅·棠尚价格在1400万,但是该项目都是洋房产品,不及阅墅的纯别墅设计。
另外,项目与周边的二手房相比,价格也有优势。中铁诺德·阅墅单价为6.2万,其北侧的清锦源,2011年建成,链家显示二手价格在9.6万左右;龙湖滟澜山,2008年建成,二手价在9万上下。
03
区域环境好、周边配套完善
中铁诺德·阅墅处在后沙峪,属于传统的中央别墅区范畴。一是高端住宅聚集,居住环境好;二是区域内的配套很成熟。
首先是交通上,机场北线高速、京平高速、京承高速、京密路等组成了便捷的路网,另外还有地铁15号线带来轨道交通的便利;商业上,中粮祥云小镇、欧陆购物中心、荣祥广场等环绕左右;当然,不得不提丰富的教育资源,区域内不仅有北师大附中、北京四中等优质公立学校,还汇集了全北京70%的国际学校。
所以对于有意向在中央别墅区置业的朋友来说,中铁诺德·阅墅是一个低价入住纯别墅社区的好机会。
【
The End
标签:
