4.4亿元拿下114亩地,碧桂园在安阳市再落一子
4.4亿元拿下114亩地,碧桂园在安阳市再落一子
12月30日上午,安阳市光明路弦歌大道附近两块住宅用地114.29亩网上挂牌出让,均以起始价总金额43992万元成交,每亩地价384.92万元,楼面地价2510元/㎡,均被碧桂园集团子公司竞得。碧桂园在安阳再落一子。

9号地10号地成交结果

9号地块成交信息
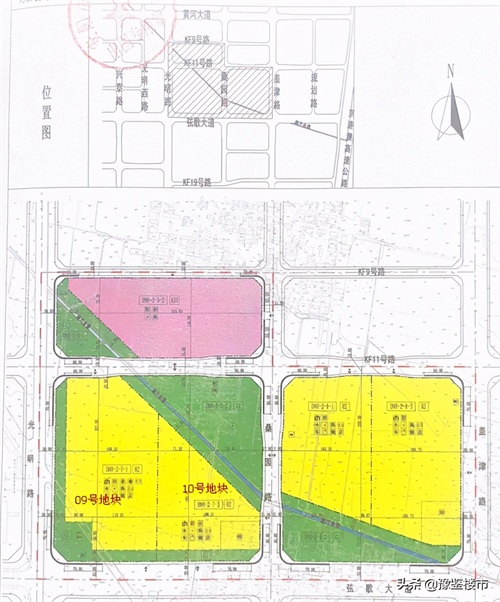
GZZ-2020-09号地块:位于光明路与弦歌大道交叉口东北,出让面积47130.89平方米(70.7亩),土地用途为住宅用地,规划容积率小于2.3,限高60米,规划建筑密度不大于20.0%,绿化率不低于40.0%,土地使用权出让年限为70年。拍卖起始价为27214万元。
该地块以起始价成交,每亩地价为384.92万元,楼面地价为2510元/㎡,被安阳市碧玺房地产开发有限公司竞得。该公司为碧桂园地产集团有限公司的子公司。

10号地块成交信息

9号地块10号地块规划图

9号地块10号地块在地图上的大致位置
GZZ-2020-10号地块:位于光明路与弦歌大道交叉口东北,出让面积29056.84平方米(43.59亩),土地用途为住宅用地,规划容积率小于2.3,限高60米,规划建筑密度不大于20.0%,绿化率不低于40.0%,土地使用权出让年限为70年。拍卖起始价为16778万元。
该地块以起始价成交,每亩地价为384.9万元,楼面地价为2511元/㎡,被安阳市碧玺房地产开发有限公司竞得。
从地图上看,碧桂园此次竞得的9号地10号地相邻,位于光明路弦歌大道安濮南线合围的三角形区域内,西南区域为安阳豫北汽车市场,沿着弦歌大道往西有紫御华府、安阳华强城、佳田未来城、圣龙家园、景诗雅苑、安彩嘉园等,沿着光明路往南是安阳国际物流港,往北有鼎盛银河湾小区、安阳昌建青风墅院、安阳建业春天里、惠安家园等,位于安阳碧桂园·玺悦的西南方向。
标签:
