亚平宁的最后荣光——详剖欧洲最强战列舰:维内托级 总体设计篇
亚平宁的最后荣光——详剖欧洲最强战列舰:维内托级 总体设计篇
文:橙子的舰船俱乐部
观众朋友们大家好,我是橙子。本系列文章将详解意大利海军维内托级战列舰,希望大家可以喜欢。
全文共计7517字,配图38幅
维内托级战列舰共4艘:维托里奥·维内托号、利托里奥号、帝国号、罗马号
书接上文:在本系列的前两期文章中,我已经带领大家详细了解了维内托级战列舰的研制背景和建造历程。还没有看过或者已经有所遗忘的朋友可以先去回顾一下前两期文章。那么在这期文章中,我将会为大家讲解维内托级的总体设计。
往期文章传送门:
面条国的巅峰之作——详剖欧洲最强战列舰:维内托级 背景篇
来自四面八方的阻力——详剖欧洲最强战列舰:维内托级 建造篇

维内托级战列舰
本期内容包括维内托级战列舰总体设计及三舰之间的差异。
总体设计(维内托号和利托里奥号)
概述
我们先来看看维内托级战列舰的基本性能数据。该级标准排水量41167吨(利托里奥号41377吨),满载排水量43624吨(利托里奥号43835吨)。全长237.7米,水线长232.4米,舰宽32.9米,水线宽32.4米,标准吃水9.8米,满载吃水10.5米。
维内托级战列舰装备有3座三联装M1934型50倍径15英寸主炮、4座三联装55倍径6英寸副炮、12座单装50倍径90毫米高射炮、8座双联装54倍径37毫米高射炮、4座单装54倍径37毫米高射炮、10座双联装65倍径20毫米高射炮(最初建成状态)。

维内托级战列舰性能数据
维内托级战列舰采用了长艏楼船型。值得一提的是,该级舰的艏楼长度竟然占到了全长的60%以上,一直延伸到三号炮塔附近(艏楼长度大于船长的25%即可算作为长艏楼)。此外,维内托级还采用了球鼻艏和巡洋舰艉设计,适航性较好。
维内托级战列舰上装载了3座三联装50倍径15英寸主炮。其中两座主炮塔以背负式安装在舰体前部,第三座炮塔则安装在舰体后部。为了不影响到两侧副炮的射界,维内托级二号、三号炮塔的高度被特意抬升了。这也是该级舰的特色之一。

维内托级战列舰,注意其长艏楼设计与特意抬高的二号、三号炮塔
武器系统
维内托级战列舰的主武器为3座三联装安萨尔多/OTO(奥托)M1934型50倍径15英寸舰炮。其中维内托号的9门主炮均由奥托公司制造,利托里奥号9门主炮均由安萨尔多公司制造,罗马号的3门主炮由安萨尔多公司制造,6门则由奥托公司制造。
M1934型50倍径15英寸舰炮是意大利制造过的口径和威力最大的舰炮,他可以发射重为885千克的穿甲弹,炮口初速高达870米/秒。不过为了减轻炮管的磨损程度,意大利人对发射药进行了调整,发射穿甲弹时的炮口初速降低至850米/秒。

维内托级战列舰装备的M1934型50倍径15英寸舰炮
M1934型50倍径15英寸舰炮的垂直穿深极其变态,甚至超越了大多数16英寸炮。该火炮在0米距离上可以击穿814毫米厚的垂直装甲,在18000米距离上可以击穿510毫米厚的垂直装甲,在28000米距离上仍可以击穿380毫米厚的垂直装甲。
M1934型主炮也有不少缺点:他在面对水平装甲时显得十分无力。同时,装药过猛导致身管的磨损速度非常快,寿命为110~130发,仅达到了世界上其他同类火炮的一半左右。另外,糟糕的炮弹品质也使得维内托级战列舰的散布差强人意。

维内托级战列舰主炮及副炮的性能数据
维内托级战列舰的副武器是4座三联装安萨尔多M1934型/OTO(奥托)M1936型55倍径6英寸副炮。其中维内托号和罗马号安装的都是由奥托公司制造的12门M1936型副炮,而利托里奥号装备的则是由安萨尔多公司制造的12门M1934型副炮。
事实上,M1934/M1936型舰炮是意大利为轻巡洋舰研制的新型火炮。他们还作为主炮安装在了阿布鲁奇公爵级轻巡洋舰上。该舰炮可以发射50千克的穿甲弹和44.57千克的高爆弹,穿甲弹可在14000米距离入射角90度时击穿86毫米装甲。

维内托级战列舰装备的M1934型/M1936型55倍径6英寸副炮
在防空武器方面,维内托级战列舰装备有12座单装安萨尔多M1938型/OTO(奥托)M1939型50倍径90毫米高射炮。这款防空武器可以发射18.41千克重的炮弹,最大射高为9000米,射速可达16发/分,总体来说是一型不错的大口径防空炮。
维内托级战列舰还装备了8座双联装布莱达M1938型54倍径37毫米高射炮,4座单装布莱达M1939型54倍径37毫米高射炮,10座双联装布莱达M1935型65倍径20毫米高射炮作为近距离防空武器。显然,这种数量的防空武器是远远不够用的。

维内托级战列舰装备的M1938型/M1939型50倍径90毫米高射炮
为了应对防空火力不足的局面,维内托级各舰在1942年都加强了防空火力。其中维内托号和罗马号加装了6座双联装布莱达M1935型65倍径20毫米高射炮,利托里奥号则加装了4座同款高射炮。不过,这些加装的防空武器并不能解决问题。
维内托级战列舰装备的防空炮并没有配备相应的指挥仪,炮手只能自行瞄准射击。这大大降低了该级舰的防空效率。最后,维内托级还装备有4座单装英国造阿姆斯特朗1891型/1899型40倍径120毫米炮,这款老式火炮仅能用来发射照明弹。

加装了防空炮后的维内托级战列舰
防护系统
在防护系统的设计上,维内托级战列舰极具创新精神。虽说意大利人打起仗来比较拉胯,但设计师们的创造力在全世界范围内还是数一数二的。而其中最具代表性的设计就是维内托级的垂直防护系统以及饱受争议的普列塞水下防护系统。
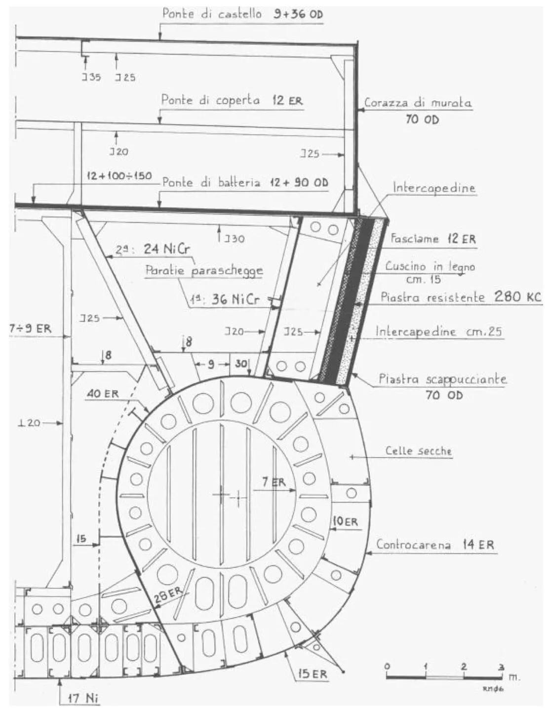
维内托级战列舰的垂直防护系统由多个模块构成,有15度倾角。最外层是70毫米均质装甲,中间是250毫米发泡水泥,内层为280毫米表面硬化装甲,内衬是150毫米橡木板,背板厚12毫米,其后还有两道防破片层,厚度为36毫米和24毫米。

维内托级战列舰的垂直防护系统
维内托级战列舰的垂直防护系统工作原理如下:外侧的70毫米均质装甲先剥掉炮弹的被帽,中间留出250毫米的发泡水泥层让被帽脱落,280毫米表面硬化装甲磕碎炮弹的弹体,而150毫米橡木板、36毫米和24毫米装甲板则负责挡住破片。
理论听上去不错,那实际效果又如何呢?根据意大利海军的测试结果,维内托级战列舰的这套垂直防护系统可以在16千米处挡住M1934型50倍径15英寸舰炮的打击。这款舰炮在18000米处的穿深就达到510了毫米,16千米时的威力只会更大。

维内托级战列舰装备的M1934型50倍径15英寸主炮
由此可见,维内托级战列舰的垂直防护系统是非常成功的,其防御效果甚至可以与日后的大和级相提并论,这也成为了该级舰的一大亮点。不过,维内托级的水平装甲并不如他的垂直防护系统那么可靠,甚至逊于大多数同时期的新锐舰。
维内托级战列舰的上部装甲带为70毫米均质装甲(剥被帽设计,同上),露天甲板为36毫米均质装甲,装有9毫米背板,第二层甲板厚12毫米,主水平装甲动力舱段厚100毫米,弹药库厚150毫米(外侧削薄到90毫米),装有12毫米背板。

维内托级战列舰弹药库舱段
薄弱的水平防护使维内托级战列舰并不适合远距离交战。此外,外侧削薄的水平装甲也难以防御穿甲炸弹。罗马号就曾在实战中被弗里茨X击中水平装甲外侧,舰体遭贯穿。(这个例子其实不太合适,同时期的其他战舰也很难抵御弗里茨X)
维内托级战列舰的主炮塔装甲正面厚380毫米,前顶为200毫米,后顶厚150毫米,后部厚350毫米,炮座顶部为350毫米,底部削薄到280毫米。指挥塔装甲正面上部为255+25毫米,下部250+10毫米,顶部120+10毫米,后部175+25毫米。

罗马号战列舰水平装甲外侧被一枚弗里茨X命中,舰体遭贯穿
再来说说维内托级战列舰的水下防护:毁誉参半的普列塞系统。与传统的防雷隔舱不同,普列塞系统采用了双重圆桶结构。其中外层隔舱注入液体(水或油),内层则为空腔。由此可见,普列塞系统其实被可以视作传统空液隔舱的特化版。
普列塞系统的原理如下:当鱼雷爆炸时,船壳首先遭到破坏。接着,压力传导到外部隔舱并挤压舱内液体。根据“加在密闭液体上的压强能够大小不变地向液体各个方向传递”(帕斯卡原理),压强传到了内部空腔壁上,隔舱崩塌吸收能量。

普列塞系统工作原理图
此外,为了避免单侧大量进水所造成的船体严重倾斜,普列塞系统还用到了“连通器原理”(连通器应该不用我解释)。普列塞系统通过双层船底内的通道将船体两侧的圆通结构连接起来,使舰体两侧的注水深度相同,以此来恢复舰体的倾斜。
原理听上去很不错,但普列塞系统实际真的有那么好用吗?理论上来说,普列塞系统的能量吸收路径是空腔、液舱、圆筒、防雷壁。但由于普列塞系统结构复杂,且强度不足,导致实际能量吸收路径跳过了圆筒,从液舱直接传给了防雷壁。

图中红色为理论能量传导路径,绿色为实际传导路径
这样看来,普列塞系统的实际能量传导路径与传统空液隔舱就没有区别,甚至效果还不如传统隔舱。维内托级战列舰的普列塞系统纵深达7.5米,理论上能抵御320千克当量TNT。为了方便大家理解,我用北卡罗来纳级的空液隔舱与之对比。
与维内托级战列舰的普列塞系统类似,北卡罗来纳级的空液隔舱也可以抵御320千克当量TNT。但不同的是,这套传统空液隔舱的最大纵深仅有5.63米,远低于普列塞系统的7.5米。也就是说,维内托级用了更大的空间才达到了同等效果。

北卡罗来纳级战列舰的传统空液隔舱
那么普列塞系统的实际效果如何呢?实话实说:我也不太清楚。在历史上,普列塞系统的实战表现和测试结果呈现出极其鲜明的两极分化。这也是该系统长期以来存在争议重要原因之一,参与争论的双方都拿得出能支持自己观点的证据。
在实战中,普列塞系统轻易败给了超过标准量20千克的鱼雷面前。而根据德国对帝国号船体的实验,普列塞系统扛住了511.5千克当量TNT的打击。普列塞系统的实际效果究竟如何我就不再多说了,感兴趣的读者朋友可以在评论区中讨论。

始终未能完工的帝国号战列舰
事实上,如果将维内托级战列舰的普列塞系统换为传统空液隔舱,该级舰将可以凭借着7.5米的超大纵深一举成为当时世界上鱼雷防护能力最强的战列舰之一(甚至与后来的大和级、蒙大拿级等末代超级战列舰相比,还能保持一定的优势)。
此外,维内托级战列舰在实战中屡受鱼雷重创的另一个原因是普列塞系统的覆盖范围太小,仅有120米,占船长的一半左右。能量吸收路径发生偏移这一问题其实可以甩锅给意大利的工业能力差,但覆盖范围小纯粹就是维内托级的设计漏洞。

维内托级战列舰的防护范围,注意普列塞系统仅与主装甲带等长
估计不用我再多说,观众朋友们也都看明白了:普列塞系统的思路本身并不存在大问题,但由于意大利工业能力不行,技术不过关。再加上维内托级战列舰自身存在设计缺陷,才导致该级舰的综合防雷能力并不理想,在实战中屡受重创。
动力系统
在动力系统方面,维内托级战列舰装备有8座亚罗式三锅筒水管燃油锅炉、4台贝里佐式齿轮减速蒸汽轮机。主机功率为130000匹马力,最大功率达134616匹马力(利托里奥号139561匹马力),航速29节(排水量41900吨时航速可达31.4节)。

维内托级战列舰的动力系统布局图
尽管维内托级战列舰跑的不慢,但是该级舰的航程实在太短了。维内托级的续航能力为:4580海里/16节、3920海里/20节和1770海里/30节。不过考虑到意大利海军压根没打算让维内托级在地中海外作战,该级舰的航程也不算什么大问题。
火控系统
在火控系统方面,维内托级战列舰共装备有24具测距仪(利托里奥号26具),其中有20具都是3米以上的测距仪。最大的6具12米测距仪被分别安装在了3座三联装50倍径15英寸主炮后。每座炮塔的2具测距仪共同组成了一个立体探测系统。

维内托级战列舰的12米测距仪
此外,1具7.2米环形复式测距仪被安装在维内托级战列舰前桅杆顶端的主炮射击指挥塔上,可以360度旋转。在主炮射击指挥塔的下方是则备用射击指挥塔,也装有1具7.2米测距仪。这种设计存在一定问题,两座射击指挥塔可能会被一起摧毁。
维内托级战列舰的机械弹道计算机布置在独立的装甲室内,防护水平较高。在其他武器的火控设施方面,维内托级的4座三联装55倍径6英寸副炮也各拥有1具6.3米测距仪。副炮射击指挥塔则安装在烟囱两侧,每侧各拥有1具复式5米测距仪。

维内托级战列舰的副炮射击指挥塔
维内托级战列舰在舰桥前部两侧共安装了两座90毫米高炮射击指挥塔,每座指挥塔各配备有1具3米测距仪,可以测量高度。作为备用,还有1具3米测距仪被安装在主桅基座上。维内托级装备的37毫米和20毫米防空炮则由4具2米测距仪负责。
维内托级战列舰上也安装过多款雷达。在1941年8月,利托里奥号成为了意大利海军中第一款搭载无线电测距仪的战舰(其实它并不能测距)。这款名为RDT的无线电测距仪就是EC-3型雷达的早期试验版,其性能甚至可以用糟糕二字形容。

维内托级战列舰的雷达设施
1942年9月,利托里奥号上的RDT无线电测距仪替换为了EC-3型雷达,其他几艘维内托级也先后安装了EC-3型雷达。这款雷达由意大利自主研发。尽管比先前的RDT无线电测距仪略有所进步,但其性能依旧不够稳定,根本无法用于射击指挥。
意大利海军只得向德国购买De.Te型雷达。1943年7月末,罗马号和维内托号战列舰分别安装了这款雷达,利托里奥号也于9月初搭载了此设备。雷达的具体安装位置见上图。De.Te型雷达的性能比EC-3型稳定很多,但依旧不能用来指挥射击。

加装雷达后的利托里奥号战列舰(1943年9月11日,此时已改名为意大利号)
由此可见,尽管维内托级战列舰在事实上安装过多型雷达,但由于这些雷达的性能都算不上优异,无法用来指挥射击,导致维内托级的夜战能力极度低下。这一缺陷在实战过程中被充分暴露了出来。而火控系统也成了维内托级的短板之一。
舰载机
最后,再讲讲维内托级战列舰的舰载机。维内托级拥有一具水上飞机弹射器,舰上可以搭载3架Ro 43型水上飞机。这款双翼水上飞机全长9.7米,翼展11.57米,飞行速度最快为303千米/小时,最高飞行高度达7200米,武器为2挺7.7毫米机枪。

维内托级战列舰搭载的Ro 43型水上飞机
随着战争的进行,意大利海军发现自己的舰队缺乏空中掩护。没有航空母舰的意大利只得让维内托级战列舰自带战斗机,你没看错,就是战斗机。1942年末,维内托级原先搭载的3架Ro 43型水上飞机中有1~2架被替换为了Re 2000型战斗机。
为了不降低空战性能,维内托级战列舰搭载的Re 2000型战斗机并没有安装浮筒。也就是说,这款战斗机在起飞后并不能直接降落在海面上,再由母舰回收。他只能先在岸基机场降落,之后打包送到港口,最后再通过运输船带回到母舰上。

降落后准备送到港口的Re 2000型战斗机
这种匪夷所思的回收流程使得Re 2000型战斗机的使用变得极其麻烦,效率更是低的离谱。另外,维内托级战列舰最多也仅能搭载2架该型战斗机,并不能给舰队防空带来什么帮助。某种意义上讲,这是意大利人在山穷水尽之际的自我安慰。
谈到维内托级战列舰,不可不提的就是舰内装潢。该级舰的内部装潢极其奢华,甚至超越了不少同时期的客轮。让人几乎无法相信这是一条战列舰。文字远比不上照片直观,我就不再多说什么了,大家自己感受一下维内托级内饰的奢华。

维内托级战列舰内部装潢

维内托级战列舰内部装潢

维内托级战列舰内部装潢

维内托级战列舰内部装潢
受篇幅所限,本文中对维内托级战列舰的介绍较为简略,也不是很全面。其目的是让大家对维内托级有一个初步认识,为本系列的后续文章作好铺垫。那么废话不再多说,我们直接进入本期文章的第二部分内容:维内托级三舰之间的差异。
维内托级三舰差异
尽管维托里奥·维内托号、利托里奥号和罗马号同属于维内托级战列舰,但这三者之间还是存有不小的差异。其中,同为第一批维内托级的维内托号和利托里奥号相似度更高,不容易分清。而作为第二批维内托级的罗马号辨识度就比较高了。

维内托级三舰差异示意图
首先,维内托级三舰的大小不同。其中维内托号标准排水量为41167吨,满载排水量45752吨,利托里奥号标准排水量为41377吨,满载排水量45963吨,罗马号标准排水量41650吨,满载排水量46215吨。维内托号和利托里奥号全长237.7米,罗马号全长238.8米。(罗马号的全长存在争议,截至目前我见过238.8米、240.1米、240.68米这三种说法。且都有权威资料佐证。本文中姑且采用238.8米的数据)

罗马号略长于其他维内托级战列舰
与第一批维内托级战列舰不同:罗马号的舰艏甲板上翘,并带有更大的舷弧,适航性更佳。此外,罗马号还取消了用处不大的右侧第二主锚。以上几处不同点对于辨识罗马号来说非常关键。趁热打铁,我们先来做一个小测试:下图中的哪艘战列舰是罗马号?看出来的观众朋友可以在评论区内打出自己的答案。

以上哪艘战列舰是罗马号
维内托级三舰的上层建筑也有多处不同。第一批维内托级战列舰的舰桥窗户向内侧倾斜,而罗马号为了改善视野将其改成了外倾。另外,维内托级三舰在不同时期的主桅火控设施也不尽相同。这是由于该级各舰的主炮射击指挥塔结构不同且安装的雷达种类、数量、位置各异。由此可见,通过上层建筑来区分维内托级三舰着实不简单。(除非你对维内托级各舰在每个历史时期的上层建筑构造都如数家珍)为保障大家的阅读体验,我将用图片的方式展现维内托级各舰指挥塔的差异。

维内托级三舰的指挥塔各层结构示意图

维内托级三舰的指挥塔结构示意图
除此之外,维内托级三舰在外观上还有多处不同:维内托号两座烟囱之间的副炮射击指挥塔结构与其他两艘维内托级战列舰不同。罗马号烟囱与指挥塔的连接处及后部指挥塔与其他二舰有差异。维内托级三舰均于1942年后在2座前部副炮顶部加装了20毫米高射机枪,且维内托号和罗马号还于1942年在2号炮塔侧面加装了20毫米机枪。以上便是维内托级三舰在外观上的差异,具体情况请参考下方图片。

维内托级三舰差异示意图
小结
维内托级战列舰是二战前夕最具创新精神的新式主力舰。但受限于意大利本身的工业水平,部分优秀的设计理念无法完全显现出其优越性。无论如何,该级舰都不失为一型优秀的战列舰。(甚至还短暂成为当时世界最强战列舰,没有之一)至于维内托级、南达科他级和黎塞留级究竟谁才是最强条约舰?我想每个人心中都有自己的答案。这三者都有各自的优势与不足,难以认定谁才是最强。既然如此,我们又何必纠结于这个问题。有这时间还不如去欣赏一下维内托级的盛世美颜。

罗马号战列舰

维内托号战列舰

罗马号战列舰

维内托级战列舰
本期关于维内托级战列舰总体设计和各舰差异的介绍到这里就要告一段落了。原创不易,喜欢的朋友可以关注我一下!!!在下期文章中,我将会继续讲解维内托级的武器系统,希望大家喜欢。
标签:
